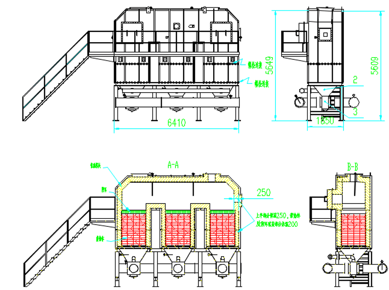
5月30日,米兰平台首套自主加工的VOCs蓄热式焚烧废气治理环保设备在化工机械厂加工完成并通过验收,另外4套VOCs催化氧化废气治理设备加工工作正按计划稳步推进,标志着公司向“第二商”目标又迈出了坚实一步。 挥发性有机物(VOCs)治理是对工业生产制造过程中所产生的有机废气的处理,VOCs是PM2.5和臭氧污染的重要前体物。“十四五”规划纲要明确提出要推进PM2.5和臭氧协同控制,加快挥发性有机物排放综合整治。近年来,公司积极响应国家战略,瞄准战略性新兴产业,积极拓展环保业务。3月份,国务院发布《推动大规模设备更新和消费品以旧换新行动方案》。公司抢抓机遇,结合已有业务,大力推进大气治理技术在精细化工、石油化工、煤化工行业的应用,重点推动化工行业大型环保设备的节能水平、安全性能提升,实现新型设备制造方面的创新升级。
公司将深入落实集团公司对绿色环保等战新产业发展要求,把握机遇、创新创造,围绕石油化工主业,发挥自身技术和品牌优势,联合华中师范大学、安徽龙新三维科技有限公司,持续提升VOCs治理关键材料和成套设备性能指标,并在进口替代方面持续发力,加快市场推广应用步伐,为优化提升大气排放控制水平,打赢新形势下的蓝天保卫战积极履行央企责任。

